Central Exhaust Ventilation

Central 

  Exhaust                  Ventilation

Your location:      Home    >  Solutions  >    Central Exhaust Ventilation

The rise of multi-storey swine farm in China

Before the outbreak of ASF, except for very few projects, multi-storey swine buildings were never a widely used choice. After the outbreak of ASF in 2019, the national hog production capacity gap reached 30%-40%, and the hog price once exceeded ¥ 40 /kg. The state issued important instructions for restoring production capacity.  The hog industry has entered a period of crazy expansion and construction, and the influx of capital has further promoted the speed of construction and expansion of major production groups. However, due to the previous environmental protection policy and the delineation of breeding ban areas, land issues have made it impossible for companies of all sizes in many areas to realize their demands.

In December 2019, the Ministry of Natural Resources and the Ministry of Agriculture and Rural Affairs issued the "Notice on Issues Concerning the Management of Facilities Agricultural Land", which allowed to build multi-storey swine buildings, which means the multi-storey swine building has been officially recognized. It has promoted the pace of the industry's construction of multi-storey pig farms.

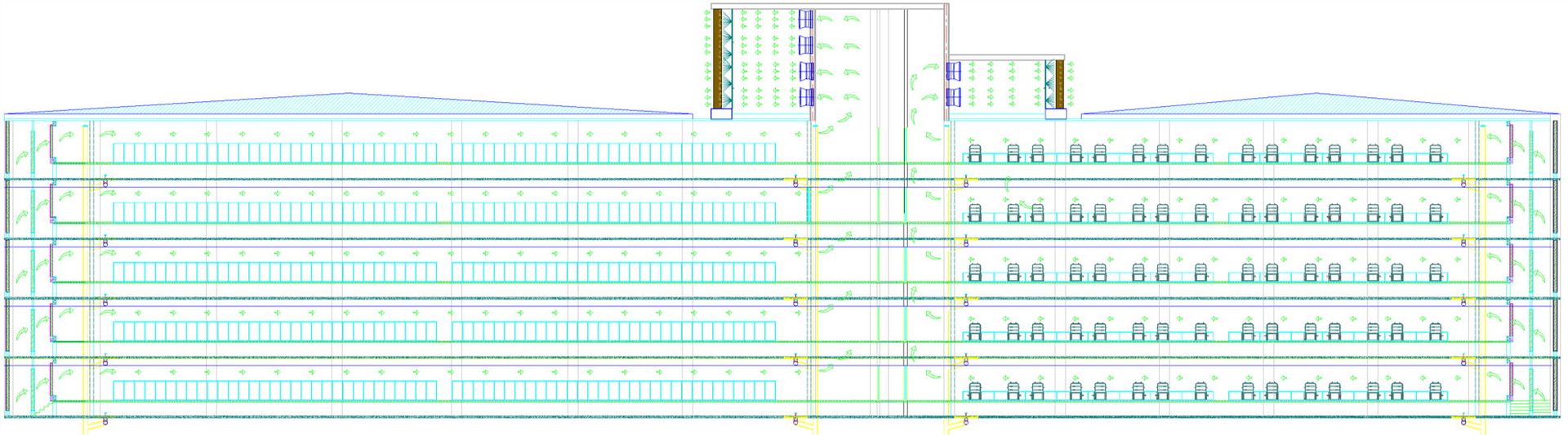
Ventilation of multi-storey swine farm

From 2019 to 2021, the boom of multi-storey swine buildings in China introduced kinds of ventilation design. There has no uniform standard in the industry for  the pig production in multi-storey buildings. Each company has its own characteristics in terms of ventilation.

Generally, there have 2 ventilation modes.

  • Multi-storey building stacked by single layer pig houses using tunnel ventilation for each layer individually;
  • Multi-storey building using tunnel ventilation by central exhaust system




Figure 1. Winter: vertical ventilation

Ventilation path:Three Defense net—Air filter—Cooling cell—Shutters—Pit—Celing inlets —Shutters —HP fans—Deodorization wall


Figure 2. Summer: Tunnel ventilation

Ventilation path:Three Defense net—Air filter—Cooling cell—Shutters—Tunnel —Shutters —HP fans—Deodorization wall

Note: Select fans according to different ventilation modes and static pressures.

Our projects